Video Tour
Gallery
40 Leiden Road, Freehold, NJ 07728
✔️ Meticulously Maintained by Original Owners
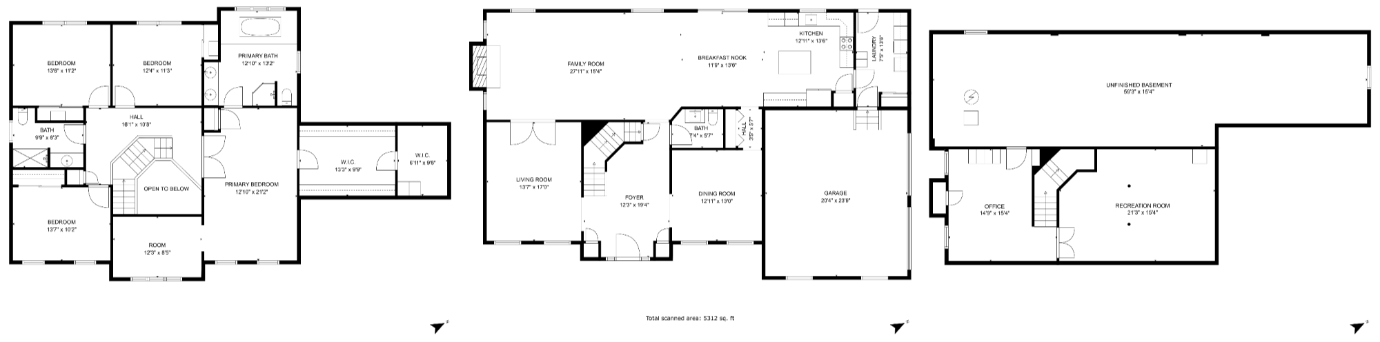
✔️ 4 Bedrooms 2.5 Baths
✔️ Finished Basement
✔️ Two Car Side Entry Garage
✔️ Situated on 1.05 Acres
✔️ Prestigious Holland Ridge Development in Freehold Township
✔️ Two-Story Foyer
✔️ Open Floor Plan
✔️ Entertainment Sized Dining Room
✔️ Custom-Built Colonial
✔️ Formal Living Room with French Doors
✔️ Great Room with Wood Burning Fireplace
✔️ Sun-Filled Eat-In Kitchen with Vaulted Ceiling
✔️ Spacious Mud Room/Laundry Room
✔️ Updated Powder Room
✔️ Generously Sized Bedrooms
✔️ Primary Suite with Sitting Room, Oversized Walk-In Closet and Ensuite Bath
✔️ Primary Bath with Soaking Tub, Shower, and Dual Sinks
✔️ Large Main Bath
✔️ Finished Basement Provides Additional Living Space and Storage
✔️ Spacious Deck
✔️ Oversized Driveway
✔️ 11 Zone Irrigation System
✔️ Fabulous Holland Ridge Development & Community
✔️ Top-Rated Freehold Township School System
✔️ Ideally Located to all Major Highways, NYC Transportation, Shopping and Beaches













































Get More Information

Property Details
Key Details
Sold Price $930,0004.6%
Property Type Single Family Home
Sub Type Single Family Residence
Listing Status Sold
Purchase Type For Sale
Square Footage 3, 278 sqft
Price per Sqft $283
Municipality Freehold Twp (FRE)
Subdivision Holland Ridge
MLS Listing ID 22402728
Sold Date 03/08/24
Style Custom, Colonial
Bedrooms 4
Full Baths 2
Half Baths 1
HOA Y/N No
Year Built 1997
Annual Tax Amount $14,623
Tax Year 2023
Lot Size 1.050 Acres
Acres 1.05
Lot Dimensions 194 x 236
Property Sub-Type Single Family Residence
Source MOREMLS (Monmouth Ocean Regional REALTORS®)
Location
State NJ
County Monmouth
Area West Freehold
Building/Complex Name Holland Ridge
Direction Holland Ridge Blvd to Langeveld Dr. to right on Leiden
Rooms
Basement Finished, Partially Finished
Building
Lot Description Oversized
Story 2
Sewer Public Sewer
Water Public
Architectural Style Custom, Colonial
Level or Stories 2
Structure Type Deck,Security System,Sprinkler Under
New Construction No
Interior
Interior Features Attic - Pull Down Stairs, Ceilings - 9Ft+ 1st Flr, Center Hall, French Doors, Security System, Sliding Door
Heating Natural Gas, Forced Air, 2 Zoned Heat
Cooling Central Air, 2 Zoned AC
Fireplaces Number 1
Fireplace Yes
Exterior
Exterior Feature Deck, Security System, Sprinkler Under
Parking Features See Remarks, Driveway, Direct Access
Garage Spaces 2.0
Roof Type Shingle
Garage Yes
Private Pool No
Schools
Elementary Schools W. Freehold
Middle Schools Clifton T. Barkalow
High Schools Freehold Twp
Others
Senior Community No
Tax ID 17-00091-02-00015








